Access More Boat Tests
Already have an account? Login
Hargrave 116 Raised Pilothouse (2016-)
Brief Summary
Hargrave has recently launched the first of its new 116’ (33.4 m) series of motoryachts and made it available for showing at the 2016 Miami Boat Show. We got a chance for a private showing shortly after and with our cameras in tow, we went through her from stem to stern. This particular model is laid out for the charter set, which manifests itself in her many entertainment features and, of course, the fact that the crew and guests are kept discreetly separated throughout the beautiful yacht. But what is probably the most notable stamp of approval is that her new owner is a four-time Hargrave customer. They must be doing something right.
Specifications
| Length Overall | 116' / 35.4 m |
|---|---|
| Beam |
24' 7.32 m |
| Dry Weight |
267,195 lbs. 121,306 kg |
| Tested Weight |
324,442 lbs. 147,296kg |
| Draft |
6' 10'' 1.8 m |
| Air Draft |
36' 8" 11.18 m |
| Deadrise/Transom | 5° |
| Max Headroom |
7' 2" 2.18 m |
| Bridge Clearance |
37' 11.28 m |
| Person Capacity | 10 |
| Fuel Capacity |
7,000 gal. 26,498 L |
| Water Capacity |
1,000 gal. 3,785 L |
| Total Weight |
324,442 lbs. 147,296kg |
Engine Options
| Tested Engine |
Currently no test numbers |
|---|---|
| Std. Power |
2 x 1950-hp Cat C32 Acert |
| Opt. Power |
Not Available |

Overview
Hargrave is no stranger to building large, beautiful yachts, and the new 116’ (33.4 m) Renaissance is another example of that skillset. She’s remarkably reminiscent of the company’s 125-footer (38.10m), which should surprise no one as both have the fingerprints of Naval Architect Jack Sarin all over them. The 116 layout features five cabins, including a full-beam owner’s suite forward on the main deck. And with a charter mindset, the crew and guests are well separated. In fact, there’s even a separate crew entrance to the guests accommodations, so turndown time is as discreet as the morning housekeeping chores.
From the beginning, the goal of this new yacht was to “showcase the latest thinking on what the American yachting experience should be in this size range.” The interior was the work of well-known yacht décor specialist Shelley DiCondina of Interiors by Shelley of Fort Lauderdale and is at once sophisticated and uncompromising. There are accommodations for up to 10 guests and eight crew, while six crew will normally be onboard.
Features Inspection
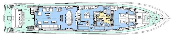
Main Deck

Aft Deck
All outdoor areas are designed to complement the interior spaces and are upholstered in bright grey/blues, dove and off white.
The aft deck is entered by stairs to both port and starboard from the swim platform. Teak decking is throughout and the entire area is protected by the extended overhead of the flying bridge deck. A large sofa runs the length between two polished chrome stanchions towards the rear of the deck. Just ahead is a pair of high-gloss teak pedestal tables with flip-out leaves that can be latched together to create one full-length table that can accommodate 10 guests.



Main Salon
We enter the main salon through a large set of stainless steel framed sliding glass doors that open automatically at the touch of a button. Once inside it quickly becomes apparent that Hargrave used every bit of the boat’s 24’ (7.32 m) beam to provide a roomy salon while still allowing for sidedecks to both port and starboard. At the entrance to the salon is also the first time that we experience the Bianco Rhino stone floor, a beautiful white marble quarried in Namibia South Africa. The furniture is all free-standing with a triple set of chairs to the port side and a sofa/chair combination to starboard. A small Barcelona Leather ottoman has a teak serving table that rests on top and is easily removed for use as a lap table.


Side windows, with low sills, provide an amazing level of visibility, even from the seated positions. Forward, is a centrally mounted floor to ceiling cabinet that separates the salon from the dining area and also serves to house the requisite 65” (165 cm) flatscreen TV on an electric lift. All of the AV equipment throughout the boat is controlled from touchscreen iPads that are situated throughout the yacht.


One thing that became quickly apparent on the Hargrave 116 is the creative use of space. No available area is wasted anywhere on this yacht. As an example, to the sides of the salon the cabinet doors access narrow storage space, but it is available space nonetheless. Panels behind these cabinets allow access to the ship’s wiring runs. In this manner, one does not have to take apart the bulkheads to conduct repairs. Everything is easily accessible regardless of where it may be.
The four corners of the main salon feature large dramatic panels of shimmering Capice Shell that will accommodate the owner’s paintings of choice. To starboard is a freestanding sofa. The rich, warm Sapele wood is mixed with the furnishings and subtle tones of Gold, Platinum, Indigo and Sky-Blue. All metal finishes are a mixture of brushed and polished nickel.

Dining Room
As stated previously, the main salon is divided from the dining area by a large, embossed glass wave panel with edge lighting that houses the TV. The Bianco Rhino Stone floor that we saw at the entrance to the salon is now repeated here in the side buffet tops and on the forward console. A small niche is designed into that forward buffet for a tall bronze sculpture that was created by the boat’s owner. The carpeting is Hyperion/Sand Valley fabric of wool/faux silk.


Galley
As is the rest of the yacht, the galley is replete with fine woods and high-end décor. Top-of-the-line appliances are used throughout and the galley crew gets to enjoy the same exterior vantage points through large side windows that the guests enjoy from elsewhere on the yacht. A pocket door leads to the dining area. Another door leads to the crew quarters.


The central island is not only designed for storage, but its size was specifically made to hold the 10 plates that will be served to the guests. There is an abundance of counter space and a well-thought-out traffic pattern that focuses on all the needs of the crew at the same time. There are stand-alone Sub-Zero refrigerators and freezers, both being full height, that are specified for the chef use. Two additional Sub-Zero refrigerator drawers by the prep area can accommodate fresh food and beverages and provide easy access from the guest corridor.

A dishwasher and cleanup sink at the prep area are completely separate from the chef’s sink. And the four large pantries highlight Hargrave's excellent use of space by ensuring that none of it is wasted anywhere on the boat.
All galley countertops are Kodiak Granite and the flooring is teak plank. The five-burner cooktop is from GE, as are the ovens. The faucets are stainless Steel Blanco.

Master Stateroom
The master stateroom is located forward on the main deck and features plenty of windows to both sides for outstanding visibility and natural light. A center-mounted king-size berth faces a built-in armoire with hanging lockers to both sides of a chest of drawers below a flat screen TV. A second armoire is to the starboard side while a desk/vanity is to the port side.

Additional storage is under the berth in the form of a pair of drawers to both sides while the center remains accessible for vertically storing narrower items such as suitcases. All cabinets and doors are a combination of Sapele wood and Makore Wave. The carpeting is a repeat of the Hyperian- Sand V-Fabrica Wool/Silk from the salon. The king bed frame is faux leather. To both sides of the bed are nightstands of White Macabas Marble. Goosneck reading lights are leather wrapped.




Master Head
The headboard to the master berth is actually fixed to a bulkhead with doorways to both port and starboard. Each side leads to a his/hers private head, both of which are separated by a centrally located, and glass-enclosed, shower with grey veined marble and a band of Mother of Pearl in natural color that wraps the room. We’re seeing more of the gloss Sapele wood for the cabinets with Cream Kaduna marble tops.


Bow
As we make our way forward, side decks to both port and starboard measure 19” (48.3 cm). From the deck to the top of the bulwarks is 35" (89 cm) and we measured 42” (106.68 cm) to the top of the rails. Both side decks are well protected from the elements by the extended overhead.
While the bow has a modest area for gathering it is mostly intended to be used by the crew. This is where the two large anchor windlasses are located with the ship’s bell suspended from a stainless steel arch in between the two. Fully forward is a sun pad nestled into the bow.
Just behind is a C-shaped sofa with accommodations for an umbrella to be inserted into the deck. Behind this, and to port and starboard, are doors leading to a sizable storage area.



Flying Bridge Deck

The flying bridge deck is undoubtedly going to be the most popular spot on the Hargrave 116. Aside from having the lion’s share of the gathering areas, it also holds the most creature comforts.
Some would make the point that that the flying bridge deck is the most comfortable place to be on board the Hargrave 116. The guests will access the deck by way of the ladder from the aft deck. A second access point is fully forward that leads from the raised pilothouse to the flying bridge helm. The deck is painted and textured in soft grey to knock down glare.
There is simply no way to understate the fact that this is an absolutely cool place to be. The stern is taken up with the boat deck that can house a small tender or, in this case, a pair of Yamaha WaveRunners. A hydraulic davit for launching the tender or WaveRunners is located to the port hand side. Just ahead are three free-standing teak chaise lounges.

Just ahead is an L-shaped settee wrapping around a teak pedestal table. Adjacent to that are two barstools that are, unsurprisingly up against a small teak bar. However, that teak bar is mounted to a four-person Jacuzzi with a sun pad directly to port.
Just over the sun pad is a flatscreen TV mounted to a swivel base. Of course this TV is totally exposed to the elements but nowadays it’s simply cheaper to replace the TV every two years than to replace the electric lift that is going to keep the TV more protected. Regardless, this little area is a remarkably cool place to sit and relax, especially while having drinks and enjoying the company of those relaxing in the Jacuzzi.


Just across are four-refrigerated drawers and an electric griddle that can be used for searing the steaks before putting them onto the adjacent propane grill. And the cool factor of this deck is not even close to being done. Not even close…
Continuing forward and up three steps, to port there is a 16’ (4.88 m) sofa that, much like what we saw on the aft deck, features a pair of large teak tables that are able to be joined together to form a single, massive table. This is a remarkably relaxing area and not only accommodates alfresco dining but also certainly makes a very classy gathering space with a view that is second to none.

Directly across is a huge, 10’ (3.05 m) bar complete with six barstools, high-gloss teak countertops, a corner mounted sink, an icemaker, Sub-Zero beverage drawers, a wine cooler, glass and liquor storage. All this, mind you, under the protection of a very long hardtop.


It's hard not to appreciate the enticing ambience of this entire deck, and while we say it's probably going to be the most attractive spot on the boat, it certainly was for us. For this is where we would have gathered after our testing session was over to relax.
Flying Bridge Helm
Finally, just up three steps is the elevated flying bridge helm with a triple wide bench seat. An access door to the lower enclosed pilothouse is just alongside. Further to port is another triple wide bench seat. Wing controls are to port while the helm controls are positioned so as to also allow a clear view of the starboard side.

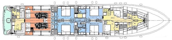
Accommodations Deck

The guest accommodations
are accessed from a companionway midships to the starboard side. A curving staircase leads to a lower foyer and directly across from the bottom of the stairs are a pair of Sapele wood framed doors with rain shower glass inlay leading to the laundry area with dual extra-large dryers.
Across from the laundry is a pair of bookcases flanking a small cabinet that is ideal for storing toiletries that guess may have forgotten when they packed for their trip. Beneath the aft bookcase is a small cabinet housing a “dorm” refrigerator so guests don’t have to go all the way up to the galley to get that late night bottle of water.





The Staterooms
The foyer serves as a symmetrical entrance to the four VIP staterooms. All have king-size berths with two being convertible to twin beds upon guest request. All stateroom doors include Nickel plaques with names representing Caribbean islands… Martinique, Antigua, Bimini and Captiva.
Otherwise, for the most part, all of the staterooms are the same except for a few subtle fabric selections. All have plenty of storage in the form of hanging lockers and chests of drawers. Over the drawers is a flatscreen TV mounted into a recessed area in the wood bulkhead.
All are finished with luxurious Italian linens on the beautifully leather upholstered beds. Windows have a sheer drape to allow sunlight to come in while maintaining privacy, and black out shades allow sleeping later into the mornings. All are equipped with vanities with lighted mirrors and two sets of drawers. Additionally, all are en suite with spacious baths with custom marble showers.



Crew Access to Guest Accommodations
One big difference between the staterooms, aside from the two that can convert to twins, is that with the forward port stateroom there is a “secret” door to the forward crew quarters that allows the crew to enter this stateroom level without having to enter the upper guest areas.
Main Bridge – The Raised Pilothouse
A stairway in the main deck corridor to the starboard side leads to the raised pilothouse of the Hargrave 116. To the rear, and starboard side, is a workstation that is set up for storing full-size charts. A center mounted companionway leads to the flying bridge. To the port side is an L-shaped settee wrapping around a teak pedestal table. Just ahead is a small desk and pull-out stool created by forming an “L” from the main console. Some might argue that while this is certainly functional, it might be a more attractive option to simply continue the L-shaped settee further forward allowing more people to sit alongside the helm station.



A pair of pedestal helm seats serves as the operating station for the command bridge. A 24" (61 cm) all-wood destroyer wheel lies below a well-thought-out panel.
There are four 19” (48.3 cm) displays flanking a pair of cat engine displays on the upper panel. To the far right-hand side are analog gauges for the fuel and water tank levels. To the port side are manual switches for all of the bilge pumps with indicator lights denoting their position on a line drawing of the yacht just above the switches.

A center panel is angled slightly to provide a better view to the operator. From port to starboard it consists of a detection system panel giving lighted indications should emergency systems be activated anywhere on board. Then follows the Naiid controls for the “At Rest” stabilizers, the port engine start/stop, Furuno controls, the port engine start/stops, controls for the two windlasses and wiper controls.

A third, and lower, panel houses controls for the 19” (48.3 cm) displays, the control for the remote spotlight, the bow thruster control, the autopilot control, the control panel for the forward-looking infrared camera, the digital engine controls, the VHF radio, and the two control panels for the Northern Lights generators.

Crew Quarters
As far as crew quarters go, there are few workplaces that are as elegant as on the Hargrave 116. Point of fact, there are actually two sets of crew quarters. The main accommodations for the crew are located forward, and are accessed from both the galley, and a side door just ahead of the galley. This is where the captain and crew accommodations are located, as well as a galley and sizable dining table for the crew.

As for the layout of the crew area, it’s good to be crew on the Hargrave 116. The large table is mounted to a slide to make it easier to get in and out of the L-shaped seating. Directly adjacent is a small dorm type refrigerator. Across is a galley with a massive pantry, a microwave and sink.


Ahead are two staterooms, each with over/under berths and en suite heads. Each berth has its own flip-down media player for the individual crew member.

There is a second crew area
accessed from a large door from the transom. As this crew area also has access to the engine room, it is largely considered to be an exclusive realm of the ship's engineer.

While there is no galley per se, the counter spaces are mostly used as work surfaces and a refrigerator is provided so that the engineer need not constantly traipse all the way to the forward crew quarters just to find something to eat.
Just to the port of the entrance is the engineer's private cabin that includes an en suite head with walk-in shower. Furthermore, there is a Pullman style berth that can be deployed whenever a pilot comes aboard for something along the lines of say, a lengthy canal transit.


Engine room
The engine room is accessed from a watertight door just ahead of the aft crew quarters. We measured 2’ (.61 m) between the stainless steel rails surrounding the engines, and the overhead clearance of 7’ (2.13 m) is by design so that the engines can be lifted out of position and serviced from underneath without ever having to take the engines out of the boat. In other words, they can be completely rebuilt right in these positions.
In the center of the two engines is a large sea chest, allowing all components in the engine room to draw water from one centrally located source without the need for several thru-hull fittings. The twin generators are located to either side of the entry door. Over to the porthand side is a waste treatment center that treats all of the wastewater on board before it is discharged overboard.



Performance
We did not test the Hargrave 116, but the folks at Hargrave did. According to the company, the Hargrave 116 had a top speed of 22.9 knots at 2338 rpm, while burning 216.0 gph. At 80% load, she had a speed of 18.9 knots at 2100 rpm, and also burning 158.0 gph for a range of 465 nautical miles, says Hargrave. At 1100 rpm, she had a speed of 10.0 knots, burning 31.4 gph for a range of 1,238 nautical miles, according to the builder.
Observations
Hargrave has specialized for years in building almost completely custom yachts with the only constraint being hull and deck molds, but even they can be altered to suit an owner’s family.
All Hargraves are built in the Kha Shing yard in Taiwan, which is one of the largest yards in the world building fiberglass motoryachts.
Without a doubt, the Hargrave 116 represents a beautiful example of how the company has evolved. Mike Joyce, the president and CEO, has shown himself to be a capable steward of the brand by continuing to produce awe-inspiring yachts, with the latest launch, this 116, being a stellar representative example.